8.8x12.52m Office Interior Layout DWG with Cabins Studio Area
Description
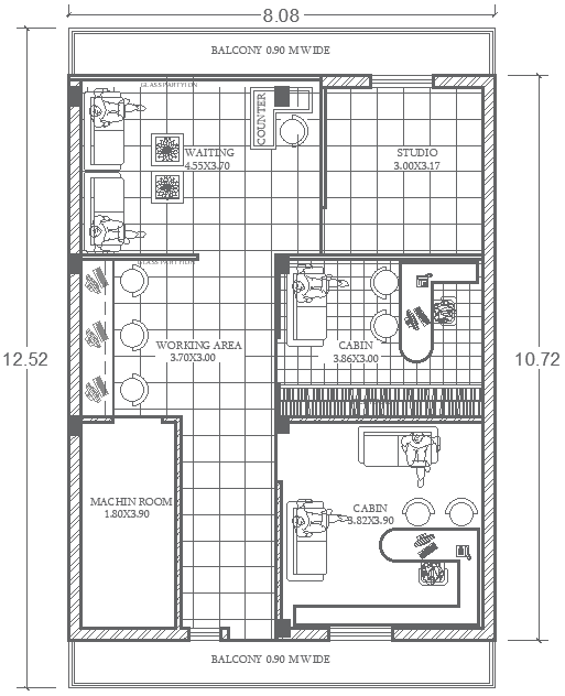
This AutoCAD DWG file features a professionally planned office interior layout designed within an overall size of 8.8 m x 12.52 m, offering a balanced and functional workspace arrangement. The plan includes a clearly defined waiting area measuring 4.55 m x 3.70 m, ensuring a comfortable reception experience for visitors. A dedicated working area of 3.70 m x 3.00 m supports collaborative tasks, while two private cabins sized 3.86 m x 3.00 m and 3.82 m x 3.90 m provide quiet zones for meetings and focused work. The layout also integrates a studio space measuring 3.00 m x 3.17 m, suitable for creative or technical activities.
In addition, the office plan includes a machine room of 1.80 m x 3.90 m for equipment placement and storage, improving operational efficiency. Front and rear balconies with 0.90 m width enhance ventilation and natural light while offering breakout space. Furniture placement, circulation paths, wall thicknesses, and door openings are clearly marked for accurate execution. This DWG file is ideal for architects, civil engineers, interior designers, builders, and CAD professionals seeking a ready-to-use office interior planning solution. The layout supports efficient space utilization, professional workflow zoning, and easy customization for modern office environments.
File Type:
DWG
File Size:
1.7 MB
Category::
Interior Design
Sub Category::
Modern Office Interior Design
type:
Gold

Uploaded by:
Eiz
Luna

